zurück

Neubau Waldorf Kindergarten Überlingen

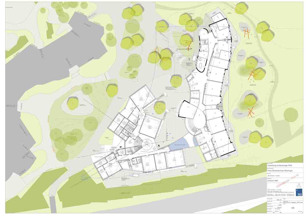
In der Nachbarschaft zu den organisch geformten Bestandsgebäuden der Freien Waldorfschule Überlingen soll ein
4-gruppiger Kindergarten mit 2-gruppiger Kinderkrippe als Neubau realisiert werden.

Der bestehende Waldorf Kindergarten ist in Bestandsgebäuden auf dem Gelände der Freien Waldorfschule Überlingen Rengoldshausen untergebracht. Die ca. 35-Jahre alten Gebäude entsprechen bau- und haustechnisch nicht mehr den aktuellen Anforderungen (z.B. hinsichtlich Dichtigkeit, Wärmeschutz) und sollen durch Neubauten ersetzt werden. Neben den bestehenden Kindergartenplätzen, welche auf 4 Gruppen verteilt sind, sollen auch 2 neue Krippengruppen entstehen. Im Jahr 2010 wurden seitens des Baukreises der Waldorfschule in Abstimmung mit der aktuellen Bauleitplanung die Grundlagen für die Schaffung von den Werten und Zielen der Waldorfpädagogik entsprechenden Räumen erarbeitet.

  • Selbst erbrachte Leistungsphasen:  LPH 1 – 8
  • Bauherr: Frei Waldorfschule Überlingen
  • BGF: 1.938 m2    BRI: 5.665 m3
  • Bauzeit: 09/2012 - 05/2014, Neubau 4-gruppiger Kindergarten mit 2-gruppiger Kinderkrippe

Ansichten:

Visualisierungen:

Grundrisse:

In der Nachbarschaft zu den organisch geformten Bestandsgebäuden der Freien Waldorfschule Überlingen soll ein
4-gruppiger Kindergarten mit 2-gruppiger Kinderkrippe als Neubau realisiert werden.

 

zur Grossansicht bitte auf die Bilder klicken

zurück